Omschrijving

Prachtig in 2018 geheel gerenoveerd en uitgebouwd benedenhuis met grote tuin, klaar om zo te verhuizen! Met twee ruime slaapkamers, open keuken een zee van licht door de glazen achter-pui, wordt de tuin een verlengde van de woning. Een energielabel A maakt dit alles nog comfortabeler en de ligging in...

Kenmerken

  • Status Beschikbaar
  • Prijs € 685.000,- Kosten Koper
  • Woonoppervlakte 74m²
  • Objecttype Appartement
  • Bouwjaar 1924

In de omgeving

Overdracht

  • Status Beschikbaar
  • Inkoopprijs € 685.000,- Kosten Koper
  • Aanvaarding In Overleg

Bouwvorm

  • Objecttype Appartement
  • Type appartement Benedenwoning
  • Bouwjaar 1924
  • Bouwvorm Bestaande Bouw
  • Locatie Aan Rustige Weg, In Centrum, In Woonwijk

Indeling

  • Woonoppervlakte 74m2
  • Capaciteit 273m3
  • Kamers 3
  • Slaapkamers 2
  • Woonverdiepingen

Energie

  • Energie-klasse A
  • Einddatum energie 2032-05-18
  • Isolatie Volledig Geisoleerd
  • Warm water Cv Ketel
  • Verwarming Cv Ketel, Vloerverwarming Gedeeltelijk
  • Bouwjaar ketel 2018
  • Combiketel Nee
  • Brandstof Gas
  • Eigendom Eigendom

Buitenruimte

  • Tuin Achtertuin

Parkeren

  • Garage Geen Garage
  • Parkeergelegenheid Openbaar Parkeren, Betaald Parkeren, Parkeervergunningen

Dak

  • Type

Andere

  • Permanent verblijf Ja
  • Bijzonderheden Beschermd Stads Of Dorpsgezicht, Toegankelijk Voor Ouderen
  • Onderhoud binnenshuis Goed Tot Uitstekend
  • Onderhoud binnenshuis Goed
  • Huidig gebruik Woonruimte
  • Huidig doel Woonruimte

Kadastrale gegevens

  • Gemeente Amsterdam
  • Sectie V
  • Kavelnummer 11687
  • Index 5
  • Eigendomssituatie Eigendom Belast Met Erfpacht

Omschrijving

Prachtig in 2018 geheel gerenoveerd en uitgebouwd benedenhuis met grote tuin, klaar om zo te verhuizen! Met twee ruime slaapkamers, open keuken een zee van licht door de glazen achter-pui, wordt de tuin een verlengde van de woning. Een energielabel A maakt dit alles nog comfortabeler en de ligging in de fijne Rivierenbuurt maakt het plaatje compleet.

Omgeving
De Rivierenbuurt staat bekend om haar ruime opzet, brede lanen, veel groen en uitstekende voorzieningen. Aan het einde van de straat ligt de levendige Rijnstraat met diverse supermarkten, gezellige koffie- en lunchtentjes maar ook op loopafstand aan de Amstel kun je terecht bij onder andere Vrijdag, Bam Boa en Trattoria Boretti is het heerlijk vertoeven. Ook de Maasstraat en Scheldestraat bevinden zich op korte afstand, met een gevarieerd aanbod aan speciaalzaken en horecagelegenheden. Voor ontspanning en recreatie ligt de Amstel aan het einde van de straat en het Martin Luther Kingpark om de hoek.

Bereikbaarheid
De woning is uitstekend bereikbaar. Via de S110 ben je binnen enkele minuten op de Ring A10 of in het centrum van de stad. Station Zuid en station Amstel liggen op korte fietsafstand en bieden treinverbindingen in alle richtingen. Daarnaast zorgen diverse tramverbindingen vanaf de Vrijheidslaan, Rooseveltlaan en het Europaplein voor een snelle verbinding met de rest van Amsterdam. En natuurlijk: met de fiets bereik je vrijwel de hele stad binnen circa 30 minuten.

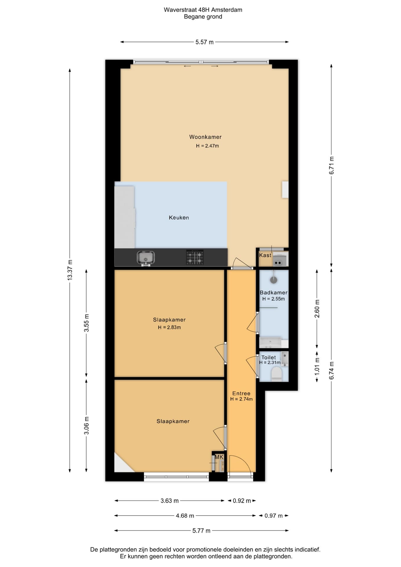
Indeling
De eigen voordeur geeft toegang tot de hal met toegang tot alle vertrekken in het appartement. Links aan de hal liggen de twee ruime slaapkamers, de eerste aan de straatzijde met ook de meterkast in deze kamer. De tweede slaapkamer ligt in het midden en is ronduit groot. Deze kamer is voorzien van ventilatie waardoor dit een prima en fijne slaapruimte betreft.
Aan de rechterzijde van de hal ligt toilet met fontein en apart een badkamer met douche, wastafelmeubel en handdoekradiator.

De hal mondt uit in de grote woonkamer met open keuken. Door de grote schuifpui aan de achterzijde en de breedte van het appartement wordt de grote tuin direct bij de woonkamer betrokken.
De hoek keuken is luxe en voorzien van oven, vaatwasser, 4-pits gasfornuis en koelkast en vriezer.

De tuin ligt weliswaar op het noorden maar door de diepte en gezien er geen hoogbouw omheen staat, komt hier de hele dag zon.

Bijzonderheden
- Woonoppervlakte van ca. 74m²;
- Tuin ca. 71m²;
- 2018 geheel gerenoveerd en uitgebouwd;
- Energielabel A;
- VVE servicekosten ca. € 119,99 per maand, professioneel beheerd en bestaande uit 12 leden;
- Erfpacht € 569,88 per jaar excl. inflatie t/m 15 oktober 2046, aanvraag overstap onder gunstige voorwaarden is
gedaan;
- Oplevering in overleg, voorkeur 1 augustus 2026;
- De koopovereenkomst zal worden opgemaakt volgens het model van de Ring Amsterdam, waarin additioneel een
asbest- en ouderdomsclausule worden opgenomen;
- Oplevering in overleg.

Toelichtingsclausule BBMI/NEN-2580:
De gebruiksoppervlakte is berekend conform de branche vastgestelde BBMI/NEN 2580- norm. De oppervlakte kan derhalve afwijken van vergelijkbare panden en/of oude referenties. Dit heeft vooral te maken met deze (nieuwe) rekenmethode. Koper verklaart voldoende te zijn geïnformeerd over de hiervoor bedoelde normering. Verkoper en diens makelaar doen hun uiterste best de juiste oppervlakte en inhoud te berekenen aan de hand van eigen metingen en dit zoveel mogelijk te ondersteunen door het plaatsen van plattegronden met maatvoering. Mocht de maatvoering onverhoopt niet (volledig) overeenkomstig de normering zijn vastgesteld, wordt dit door koper aanvaard. Koper is voldoende in de gelegenheid gesteld de maatvoering zelf te (laten) controleren. Verschillen in de opgegeven maat en grootte geven geen der partijen enig recht, zo ook niet op aanpassing van de koopsom. Verkoper en diens makelaar aanvaarden geen enkele aansprakelijkheid in deze.

------------------------------------------------------------------------------------------------

ENGLISH

Beautiful ground-floor apartment, fully renovated and extended in 2018, featuring a large garden and ready to move in! With two spacious bedrooms, an open kitchen, and an abundance of natural light through the glass rear façade, the garden truly becomes an extension of the home. An energy label A adds extra comfort, and the location in the charming Rivierenbuurt completes the picture.

Surroundings
The Rivierenbuurt is known for its spacious layout, wide avenues, greenery, and excellent amenities. At the end of the street lies the lively Rijnstraat, offering various supermarkets, cozy cafés, and lunch spots. Within walking distance along the Amstel, you’ll find popular places such as Vrijdag, Bam Boa, and Trattoria Boretti. The Maasstraat and Scheldestraat are also nearby, providing a wide range of specialty shops and restaurants. For relaxation and recreation, the Amstel is at the end of the street and the Martin Luther King Park is just around the corner.

Accessibility
The property is very well connected. Via the S110, you can reach the A10 ring road or the city center within minutes. Station Zuid and Amstel Station are both a short bike ride away and offer train connections in all directions. In addition, several tram lines from Vrijheidslaan, Rooseveltlaan, and Europaplein provide quick access to the rest of Amsterdam. And of course, by bike you can reach almost anywhere in the city within about 30 minutes.

Layout
The private entrance leads into a hallway that provides access to all rooms in the apartment. On the left side of the hall are the two spacious bedrooms. The first bedroom is located at the front (street side) and also contains the utility meter cupboard. The second bedroom is centrally located and generously sized, equipped with ventilation, making it a comfortable sleeping space.

On the right side of the hall, you will find a separate toilet with a small sink, and a bathroom fitted with a shower, washbasin cabinet, and towel radiator.

The hallway opens into a large living room with an open kitchen. Thanks to the wide layout of the apartment and the large sliding glass doors at the rear, the spacious garden is seamlessly connected to the living area.

The corner kitchen is luxurious and equipped with an oven, dishwasher, 4-burner gas stove, refrigerator, and freezer.

Although the garden faces north, its depth and the absence of surrounding high-rise buildings ensure sunlight throughout the day.

Key Features:
- Living area approx. 74 m²;
- Garden approx. 71 m²;
- Fully renovated and extended in 2018;
- Energy label A;
- Homeowners’ association (VvE) service costs approx. €119.99 per month, professionally managed, consisting of 12 members;
- Ground lease €569.88 per year (excluding indexation) until October 15, 2046; application for favorable leasehold conversion has been submitted;
- Transfer date in consultation;
- Purchase agreement based on the Amsterdam Ring model, including asbestos and age clauses.

Explanatory Clause BBMI/NEN 2580
The usable floor area has been calculated in accordance with the industry-standard BBMI/NEN 2580 measurement guidelines. As a result, the stated surface area may differ from comparable properties or older references, mainly due to this (new) measurement method. The buyer declares to have been sufficiently informed about this standard. The seller and their agent have made every effort to calculate the correct surface area and volume based on their own measurements and to support this with floor plans including dimensions wherever possible. Should the measurements not fully comply with the standard, this is accepted by the buyer. The buyer has been given the opportunity to independently verify the measurements. Any differences in stated size or dimensions do not grant either party any rights, including the right to adjust the purchase price. The seller and their agent accept no liability in this regard.

Foto's

Documenten

Selecteer de documenten om ze te downloaden

€ 685.000,- Kosten Koper

Gratis waardebepaling

Ontvang gratis en vrijblijvend een waardebaling van jouw woning.