1055 AT AMSTERDAM

Griseldestraat 47

Omschrijving

*English text below* Licht en ruim 2-kamer benedenwoning van ca. 51m², volledig naar eigen wens te renoveren. Gelegen in de levendige maar rustige Erasmusparkbuurt in Amsterdam-West! Omgeving: Het appartement is gelegen in de Erasmusparkbuurt, waar de omgeving een breed scala aan voorzieningen biedt, met diverse supermarkten en winkels op loopafstand....

Kenmerken

  • Status Verkocht
  • Prijs € 325.000,- Kosten Koper
  • Woonoppervlakte 51m²
  • Objecttype Appartement
  • Bouwjaar 1940

In de omgeving

Overdracht

  • Status Verkocht
  • Inkoopprijs € 325.000,- Kosten Koper
  • Aanvaarding In Overleg

Bouwvorm

  • Objecttype Appartement
  • Type appartement Benedenwoning
  • Bouwjaar 1940
  • Bouwvorm Bestaande Bouw
  • Locatie In Woonwijk, Beschutte Ligging

Indeling

  • Woonoppervlakte 51m2
  • Capaciteit 199m3
  • Kamers 2
  • Slaapkamers 1
  • Woonverdiepingen

Energie

  • Energie-klasse E
  • Einddatum energie 2033-07-07
  • Isolatie Gedeeltelijk Dubbel Glas
  • Warm water Cv Ketel
  • Verwarming Cv Ketel
  • Bouwjaar ketel 2008
  • Combiketel Ja
  • Eigendom Eigendom

Buitenruimte

  • Tuin Geen Tuin

Parkeren

  • Garage Geen Garage
  • Parkeergelegenheid Betaald Parkeren, Parkeervergunningen

Dak

  • Type

Andere

  • Permanent verblijf Ja
  • Bijzonderheden
  • Onderhoud binnenshuis Redelijk
  • Onderhoud binnenshuis Uitstekend
  • Huidig gebruik Woonruimte
  • Huidig doel Woonruimte

Kadastrale gegevens

  • Gemeente Sloten Noord-Holland
  • Sectie L
  • Kavelnummer 2137
  • Oppervlakte 67
  • Eigendomssituatie Eigendom Belast Met Erfpacht

Omschrijving

*English text below*

Licht en ruim 2-kamer benedenwoning van ca. 51m², volledig naar eigen wens te renoveren. Gelegen in de levendige maar rustige Erasmusparkbuurt in Amsterdam-West!

Omgeving:
Het appartement is gelegen in de Erasmusparkbuurt, waar de omgeving een breed scala aan voorzieningen biedt, met diverse supermarkten en winkels op loopafstand. In de buurt zijn ook gezellige horecagelegenheden te vinden, zoals parkcafé Terrasmus, Fort Negen en MasMais. Voor ontspanning en recreatie liggen het Erasmuspark en het Westerpark om de hoek, met speeltuinen, een kinderboerderij en culturele activiteiten. Een levendige en complete woonomgeving!

Bereikbaarheid:
De bereikbaarheid van het appartement is uitstekend met zowel het openbaar vervoer als met de auto. Tram- en bushaltes bevinden zich op loopafstand en metrostation De Vlugtlaan is binnen enkele minuten te bereiken, net als NS station Sloterdijk. Met de auto bent u in no-time op de ringweg A10 en voor parkeren in de buurt is voldoende gelegenheid.

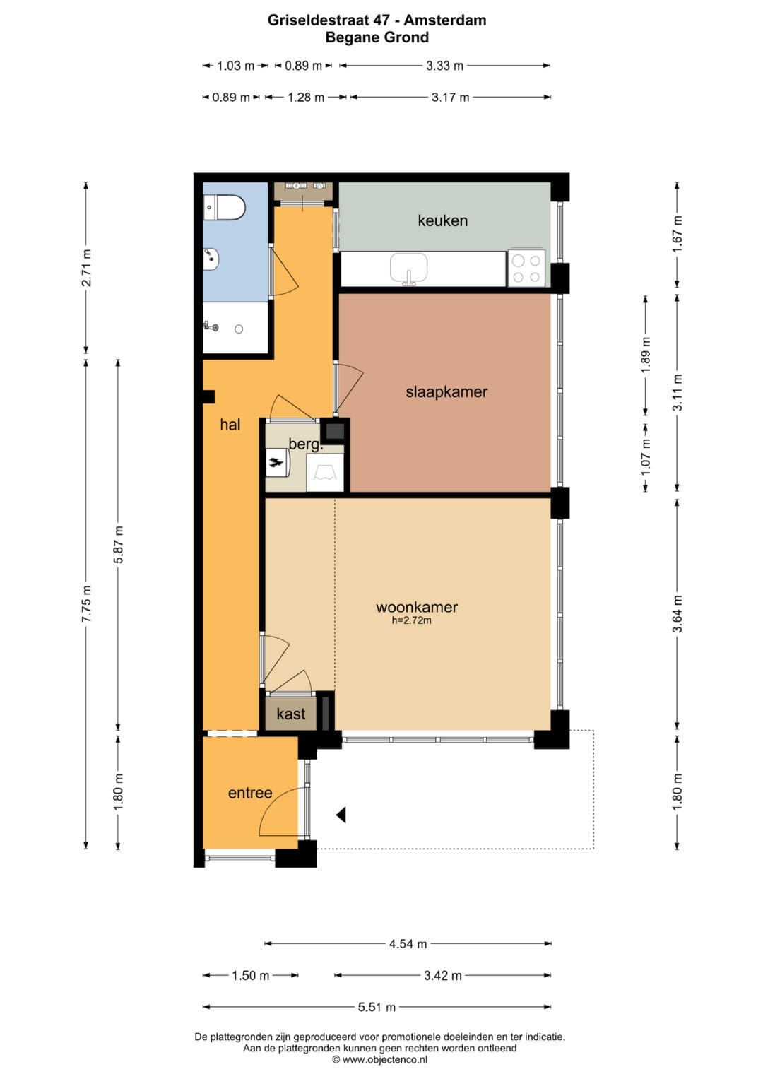
Indeling:

Begane grond:
Via de eigen entree met tochtportaal bereikt u de hal, welke toegang biedt tot alle vertrekken van de woning. Aan de voorzijde bevindt zich de woonkamer die door de hoekligging van het appartement en de vele ramen beschikt over veel daglicht. Aan de achterzijde bevinden zich de ruime slaapkamer, de badkamer met douche, wastafel en toilet en de keuken.

Bijzonderheden:
- Recent gesplitst (2025);
- MJOP aanwezig;
- VvE wordt opgestart en professioneel beheerd door Quadyck Real Estate BV;
- De VvE bestaat uit 4 appartementsrechten;
- Verwachte servicekosten ca. € 144,34 per maand;
- Erfpachtcanon bedraagt € € 893,37 per jaar;
- Tijdvak erfpacht loopt t/m 15 juni 2064:
- Projectnotaris: KB Notarissen, Frans ten Veen;
- De koopovereenkomst zal worden opgemaakt volgens het model van de Ring Amsterdam, waarin additioneel een niet- bewoners-, asbest- , As is, where is en ouderdomsclausule worden opgenomen;
- Oplevering kan snel.

Toelichtingsclausule BBMI/NEN-2580:
De gebruiksoppervlakte is berekend conform de branche vastgestelde BBMI/NEN 2580- norm. De oppervlakte kan derhalve afwijken van vergelijkbare panden en/of oude referenties. Dit heeft vooral te maken met deze (nieuwe) rekenmethode. Koper verklaart voldoende te zijn geïnformeerd over de hiervoor bedoelde normering. Verkoper en diens makelaar doen hun uiterste best de juiste oppervlakte en inhoud te berekenen aan de hand van eigen metingen en dit zoveel mogelijk te ondersteunen door het plaatsen van plattegronden met maatvoering. Mocht de maatvoering onverhoopt niet (volledig) overeenkomstig de normering zijn vastgesteld, wordt dit door koper aanvaard. Koper is voldoende in de gelegenheid gesteld de maatvoering zelf te (laten) controleren. Verschillen in de opgegeven maat en grootte geven geen der partijen enig recht, zo ook niet op aanpassing van de koopsom. Verkoper en diens makelaar aanvaarden geen enkele aansprakelijkheid in deze.

------------------------------------------------------------------------------------------
ENGLISH

Bright and spacious 1-bedroom ground-floor apartment of approx. 51m², ready to renovate to your own taste. Located in the vibrant yet peaceful Erasmuspark neighborhood in Amsterdam-West!

Surroundings:
The apartment is situated in the Erasmusparkbuurt, a neighborhood that offers a wide range of amenities, including various supermarkets and shops within walking distance. The area also boasts charming restaurants and cafés, such as Parkcafé Terrasmus, Fort Negen, and MasMais. For relaxation and recreation, both Erasmus Park and Westerpark are just around the corner, offering playgrounds, a petting zoo, and cultural activities. A lively and complete living environment!

Accessibility:
The apartment is easily accessible by both public transport and car. Tram and bus stops are within walking distance, and metro station De Vlugtlaan can be reached within minutes, as well as Sloterdijk railway station. By car, you can quickly reach the A10 ring road, and there is ample parking available in the area.

Layout:
Ground Floor:
Through your private entrance with vestibule, you enter the hallway that provides access to all rooms in the home. At the front is the living room, which enjoys plenty of natural light due to the corner location and multiple windows. At the rear are the spacious bedroom, the bathroom with shower, sink, and toilet, and the kitchen.

Key Features:
- Recently divided (2025);
- Long-Term Maintenance Plan (MJOP) available;
- Homeowners’ Association (VvE) is being established and will be professionally managed by Quadyck Real Estate BV;
- The VvE consists of 4 apartment rights;
- Expected service charges approx. €144.34 per month;
- Ground lease (erfpacht) amounts to €893.37 per year;
- Lease term runs until June 15, 2064;
- Designated project notary: KB Notarissen, Frans ten Veen;
- The purchase agreement will be drawn up according to the Ring Amsterdam model, and will include additional clauses: non-resident clause, asbestos clause, “as is, where is” clause, and age clause;
- Quick delivery possible.

BBMI/NEN-2580 Explanation Clause:
The usable floor area has been calculated in accordance with the industry-standard BBMI/NEN 2580 norm. As a result, the stated size may differ from comparable properties and/or older references, mainly due to this (new) calculation method. The buyer declares to be sufficiently informed about this standard. The seller and their agent have made every effort to calculate the correct surface area and volume based on their own measurements and have provided floor plans with dimensions for support. Should the measurements not fully comply with the norm, this is accepted by the buyer. The buyer has been sufficiently given the opportunity to verify the dimensions themselves (or have them verified). Differences in the stated dimensions or size do not entitle either party to any claims or to adjust the purchase price. The seller and their agent accept no liability in this regard.

Foto's

Documenten

Selecteer de documenten om ze te downloaden

€ 325.000,- Kosten Koper

Gratis waardebepaling

Ontvang gratis en vrijblijvend een waardebaling van jouw woning.