1078 KN AMSTERDAM

Grevelingenstraat 12 1

Omschrijving

Modern en licht 3-kamerappartement van ca. 84m² met vrij uitzicht en eigen entree. Het appartement is gelegen op een toplocatie in een rustig deel van de Rivierenbuurt in Amsterdam-Zuid. Diverse winkels en prachtige parken liggen op loopafstand, net als de bruisende Pijp. Omgeving: Het appartement is gelegen in de populaire...

Kenmerken

  • Status Verkocht Onder Voorbehoud
  • Prijs € 725.000,- Kosten Koper
  • Woonoppervlakte 84m²
  • Objecttype Appartement
  • Bouwjaar 1929

In de omgeving

Overdracht

  • Status Verkocht Onder Voorbehoud
  • Inkoopprijs € 725.000,- Kosten Koper
  • Aanvaarding In Overleg

Bouwvorm

  • Objecttype Appartement
  • Type appartement Tussenverdieping
  • Bouwjaar 1929
  • Bouwvorm Bestaande Bouw
  • Locatie In Woonwijk, Vrij Uitzicht, Beschutte Ligging

Indeling

  • Woonoppervlakte 84m2
  • Capaciteit 228m3
  • Kamers 3
  • Slaapkamers 2
  • Woonverdiepingen

Energie

  • Energie-klasse B
  • Einddatum energie 2033-05-11
  • Warm water Cv Ketel
  • Verwarming Cv Ketel
  • Bouwjaar ketel 2006
  • Combiketel Ja
  • Eigendom Eigendom

Buitenruimte

  • Tuin Geen Tuin

Parkeren

  • Garage Geen Garage
  • Parkeergelegenheid Betaald Parkeren, Parkeervergunningen

Dak

  • Type

Andere

  • Permanent verblijf Ja
  • Bijzonderheden
  • Onderhoud binnenshuis Uitstekend
  • Onderhoud binnenshuis Uitstekend
  • Huidig gebruik Woonruimte
  • Huidig doel Woonruimte

Kadastrale gegevens

  • Gemeente Amsterdam
  • Sectie V
  • Kavelnummer 10271
  • Index 27
  • Eigendomssituatie Eigendom Belast Met Erfpacht
  • Gekocht tot 2052-08-01

Omschrijving

Modern en licht 3-kamerappartement van ca. 84m² met vrij uitzicht en eigen entree. Het appartement is gelegen op een toplocatie in een rustig deel van de Rivierenbuurt in Amsterdam-Zuid. Diverse winkels en prachtige parken liggen op loopafstand, net als de bruisende Pijp.

Omgeving:
Het appartement is gelegen in de populaire Rivierenbuurt in Amsterdam-Zuid, een geliefde en karakteristieke woonomgeving met brede straten, veel groen en een ontspannen sfeer. In de directe omgeving vind je tal van gezellige cafés, restaurants en buurtwinkels, onder andere aan de Maasstraat, Scheldestraat en de Rijnstraat. Ook het Martin Luther Kingpark, Sarphatipark en de Amstel liggen op korte afstand, ideaal voor een wandeling of een moment van rust aan het water.

Bereikbaarheid:
De bereikbaarheid is uitstekend. Zowel station RAI als station Amstel en Zuid liggen op loop- of fietsafstand, en met diverse tram- en buslijnen en de Noord/Zuid-lijn bereik je in no time het centrum. Ook met de auto is de ligging ideaal: via de A2 en A10 rijd je binnen enkele minuten de ringweg op.

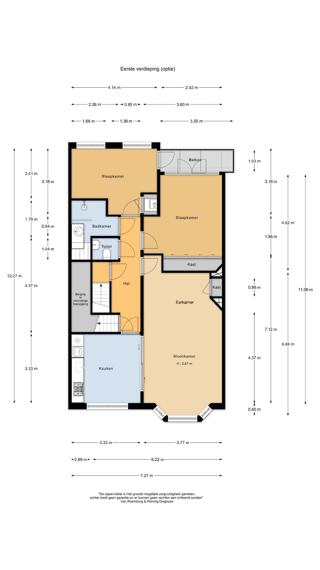
Indeling:

Begane grond:
Via je eigen entree bereik je het appartement op de eerste verdieping.

Eerste verdieping:
De hal vormt het centrale punt van de woning en geeft toegang tot alle vertrekken. Naast de woonkamer beschikt het appartement over twee ruime kamers: één aan de achterzijde en één aan de zonnige voorzijde. De kamer aan de voorzijde kan middels moderne zwarte stalen glazen deuren worden afgescheiden van de woonkamer. Hierdoor is de ruimte flexibel in te delen; wie geen extra slaapkamer nodig heeft, kan hier eenvoudig een extra zithoek of een comfortabele werkplek realiseren. Aan de voorzijde, in de brede erker en het grote zijraam, is HR++ glas geplaatst voor extra wooncomfort.
De moderne badkamer is voorzien van een inloopdouche en een wastafelmeubel. Direct naast de badkamer bevindt zich een separaat toilet. Aan de achterzijde van het appartement ligt de moderne L-vormige hoekkeuken. Deze is uitgerust met diverse inbouwapparatuur, waaronder een oven, vaatwasser, een vijfpits gaskookplaat met afzuigkap, een koelkast en een vriezer. Vanuit zowel de keuken als de slaapkamer aan de achterzijde is het balkon bereikbaar: een fijne plek om op warme zomerdagen in alle rust van de buitenlucht te genieten.

In het appartement ligt een mooie houten vloer en in de keuken ligt een laminaatvloer.

Bijzonderheden:
- Energielabel B;
- De VvE bestaat uit 18 appartementsrechten;
- VvE servicekosten bedragen zijn € 139,51 per maand;
- VvE wordt professioneel beheerd door Delair Vastgoedbeheer;
- Erfpacht is afgekocht tot en met 31 juli 2052;
- Erfpacht canon is vastgeklikt na 31 juli 2052 voor € 2.043,11 + jaarlijkse daadwerkelijke inflatie.
- De koopovereenkomst zal worden opgemaakt volgens het model van de Ring Amsterdam, waarin additioneel een asbest en ouderdomsclausule worden opgenomen;
- Oplevering, in overleg.

Toelichtingsclausule BBMI/NEN-2580:
De gebruiksoppervlakte is berekend conform de branche vastgestelde BBMI/NEN 2580- norm. De oppervlakte kan derhalve afwijken van vergelijkbare panden en/of oude referenties. Dit heeft vooral te maken met deze (nieuwe) rekenmethode. Koper verklaart voldoende te zijn geïnformeerd over de hiervoor bedoelde normering. Verkoper en diens makelaar doen hun uiterste best de juiste oppervlakte en inhoud te berekenen aan de hand van eigen metingen en dit zoveel mogelijk te ondersteunen door het plaatsen van plattegronden met maatvoering. Mocht de maatvoering onverhoopt niet (volledig) overeenkomstig de normering zijn vastgesteld, wordt dit door koper aanvaard. Koper is voldoende in de gelegenheid gesteld de maatvoering zelf te (laten) controleren. Verschillen in de opgegeven maat en grootte geven geen der partijen enig recht, zo ook niet op aanpassing van de koopsom. Verkoper en diens makelaar aanvaarden geen enkele aansprakelijkheid in deze.

-------------------------------------------------------------------------------------------

*English text*

Modern and bright 2-bedroom apartment of approx. 84 m² with unobstructed views and a private entrance. The apartment is located in a prime location in a quiet part of the Rivierenbuurt in Amsterdam South. Various shops and beautiful parks are within walking distance, as well as the vibrant De Pijp district.

Surroundings

The apartment is situated in the popular Rivierenbuurt in Amsterdam South, a highly sought-after and characteristic residential area with wide streets, plenty of greenery, and a relaxed atmosphere. In the immediate vicinity, you will find numerous cozy cafés, restaurants, and local shops, including along Maasstraat, Scheldestraat, and Rijnstraat. The Martin Luther King Park, Sarphatipark, and the Amstel River are also nearby—perfect for a walk or a peaceful moment by the water.

Accessibility

Accessibility is excellent. RAI, Amstel, and Zuid stations are all within walking or cycling distance, and with various tram and bus lines as well as the North/South metro line, you can reach the city center in no time. The location is also ideal by car: the A2 and A10 highways can be reached within minutes.

Layout

Ground floor:
The apartment on the first floor is accessed via a private entrance.

First floor:
The hallway forms the central hub of the home and provides access to all rooms. In addition to the living room, the apartment features two spacious rooms: one at the rear and one at the sunny front. The front room can be separated from the living room by modern black steel-framed glass doors, offering flexibility in layout. If an extra bedroom is not needed, this space can easily serve as an additional sitting area or a comfortable workspace.

At the front, the wide bay window and large side window are fitted with HR++ glazing for added comfort.

The modern bathroom features a walk-in shower and a vanity unit. A separate toilet is located directly next to the bathroom.

At the rear of the apartment, you will find the modern L-shaped corner kitchen, equipped with various built-in appliances, including an oven, dishwasher, five-burner gas stove with extractor hood, refrigerator, and freezer.

The balcony can be accessed from both the kitchen and the rear bedroom—a pleasant spot to enjoy the fresh air in peace on warm summer days.

The apartment has a beautiful wooden floor, and the kitchen features laminate flooring.

Key features:
- Energy label B;
- Homeowners’ association (VvE) consists of 18 apartment rights;
- Monthly service charges: €139.51;
- Professionally managed by Delair Property Management;
- Ground lease prepaid until July 31, 2052;
- Ground lease fixed after July 31, 2052 at €2,043.11 + annual actual inflation;
- Purchase agreement based on the Ring Amsterdam model, including asbestos and age clauses;
- Transfer date in consultation.

Explanatory clause BBMI/NEN 2580
The usable floor area has been calculated in accordance with the industry-standard BBMI/NEN 2580 norm. As a result, the stated surface area may differ from comparable properties and/or older references, mainly due to this (new) measurement method. The buyer declares to have been sufficiently informed about this standard. The seller and their agent make every effort to calculate the correct surface area and volume based on their own measurements and to support this as much as possible with floor plans including dimensions. If the measurements are not (fully) in accordance with the standard, the buyer accepts this. The buyer has been given sufficient opportunity to verify the measurements independently. Differences in stated size or dimensions do not grant either party any rights, including adjustments to the purchase price. The seller and their agent accept no liability in this regard.

Foto's

Documenten

Selecteer de documenten om ze te downloaden

€ 725.000,- Kosten Koper

Gratis waardebepaling

Ontvang gratis en vrijblijvend een waardebaling van jouw woning.