1055 AJ AMSTERDAM

Buskenblaserstraat 42 1

Omschrijving

Fraai en zeer licht 3-kamerappartement van ca. 52 m² met een royaal balkon en een berging op de zolderverdieping, gelegen in de populaire Erasmusparkbuurt in Amsterdam-West! Omgeving: Het appartement is gelegen in de Erasmusparkbuurt, waar de omgeving een breed scala aan voorzieningen biedt, met diverse supermarkten en winkels op loopafstand....

Kenmerken

  • Status Verkocht Onder Voorbehoud
  • Prijs € 375.000,- Kosten Koper
  • Woonoppervlakte 52m²
  • Objecttype Appartement
  • Bouwjaar 1940

In de omgeving

Overdracht

  • Status Verkocht Onder Voorbehoud
  • Inkoopprijs € 375.000,- Kosten Koper
  • Aanvaarding In Overleg

Bouwvorm

  • Objecttype Appartement
  • Type appartement Tussenverdieping
  • Bouwjaar 1940
  • Bouwvorm Bestaande Bouw
  • Locatie In Woonwijk, Beschutte Ligging

Indeling

  • Woonoppervlakte 52m2
  • Capaciteit 178m3
  • Kamers 3
  • Slaapkamers 1
  • Woonverdiepingen

Energie

  • Energie-klasse E
  • Einddatum energie 2033-06-19
  • Isolatie Dubbel Glas
  • Warm water Cv Ketel
  • Verwarming Cv Ketel
  • Bouwjaar ketel 2021
  • Combiketel Ja
  • Eigendom Eigendom

Buitenruimte

  • Tuin Geen Tuin

Parkeren

  • Garage Geen Garage
  • Parkeergelegenheid Betaald Parkeren, Parkeervergunningen

Dak

  • Type

Andere

  • Permanent verblijf Ja
  • Bijzonderheden
  • Onderhoud binnenshuis Goed
  • Onderhoud binnenshuis Uitstekend
  • Huidig gebruik Woonruimte
  • Huidig doel Woonruimte

Kadastrale gegevens

  • Gemeente Sloten Noord-Holland
  • Sectie L
  • Kavelnummer 3923
  • Index 2
  • Eigendomssituatie Eigendom Belast Met Erfpacht

Omschrijving

Fraai en zeer licht 3-kamerappartement van ca. 52 m² met een royaal balkon en een berging op de zolderverdieping, gelegen in de populaire Erasmusparkbuurt in Amsterdam-West!

Omgeving:
Het appartement is gelegen in de Erasmusparkbuurt, waar de omgeving een breed scala aan voorzieningen biedt, met diverse supermarkten en winkels op loopafstand. In de buurt zijn ook gezellige horecagelegenheden te vinden, zoals parkcafé Terrasmus, Fort Negen en MasMais. Voor ontspanning en recreatie liggen het Erasmuspark en het Westerpark om de hoek, met speeltuinen, een kinderboerderij en culturele activiteiten. Een levendige en complete woonomgeving!

Bereikbaarheid:
De bereikbaarheid van het appartement is uitstekend met zowel het openbaar vervoer als met de auto. Tram- en bushaltes bevinden zich op loopafstand en metrostation De Vlugtlaan is binnen enkele minuten te bereiken, net als NS station Sloterdijk. Met de auto bereik je in no-time de ringweg A10 en voor parkeren in de buurt is voldoende gelegenheid.

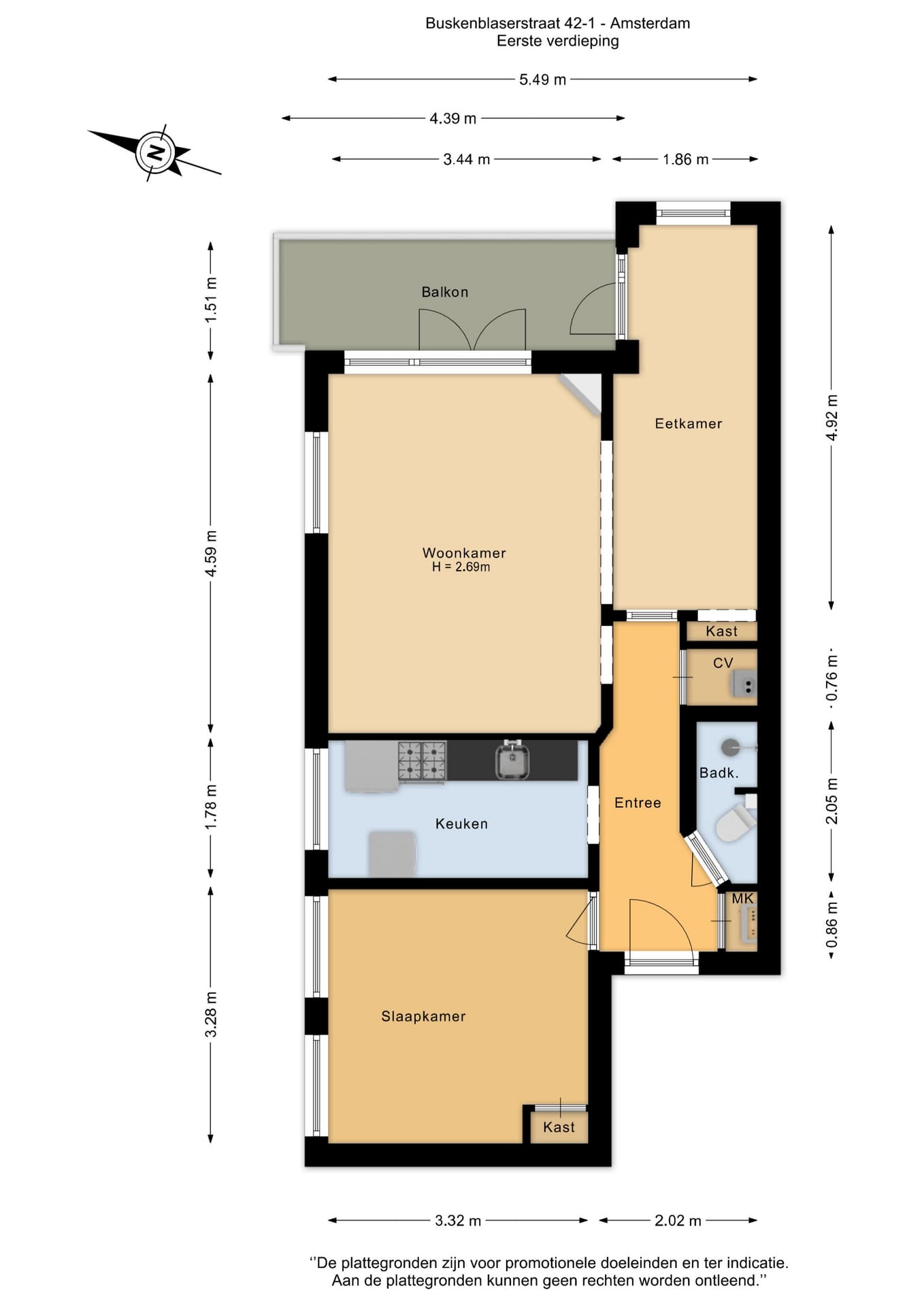
Indeling:
Via het gemeenschappelijke trappenhuis bereik je de entree van de woning op de eerste verdieping.

Eerste verdieping:
De hal biedt toegang tot alle vertrekken in de woning. Dankzij de hoekligging beschikt het appartement over een zeer lichte en royale woonkamer met aangrenzend een open eetkamer. Vanuit de woonkamer geven openslaande deuren toegang tot het balkon. Verder beschikt het appartement over een ruime slaapkamer en een aparte keuken. De hal biedt tevens toegang tot de badkamer, welke is voorzien van een toilet en douche.

Daarnaast is er een royale berging (ca. 11m²) op de zolderverdieping aanwezig voorzien van elektra en verwarming.

Bijzonderheden:
- Gesplitst in 2025;
- Berging op de zolderverdieping;
- VvE wordt opgestart en professioneel beheerd door Quadyck Real Estate BV;
- De VvE bestaat uit 4 appartementsrechten;
- VvE servicekosten € 162,71 per maand;
- Erfpachtcanon bedraagt € 1.028,22 per jaar;
- Tijdvak erfpacht loopt t/m 15 juni 2064:
- Erfpachtcanon, 1 jaarlijkse indexering;
- De koopovereenkomst zal worden opgemaakt volgens het model van de Ring Amsterdam, waarin additioneel een niet- bewoners-, asbest-, ouderdomsclausule en As is, where is worden opgenomen;
- Oplevering kan snel.

Toelichtingsclausule BBMI/NEN-2580:
De gebruiksoppervlakte is berekend conform de branche vastgestelde BBMI/NEN 2580- norm. De oppervlakte kan derhalve afwijken van vergelijkbare panden en/of oude referenties. Dit heeft vooral te maken met deze (nieuwe) rekenmethode. Koper verklaart voldoende te zijn geïnformeerd over de hiervoor bedoelde normering. Verkoper en diens makelaar doen hun uiterste best de juiste oppervlakte en inhoud te berekenen aan de hand van eigen metingen en dit zoveel mogelijk te ondersteunen door het plaatsen van plattegronden met maatvoering. Mocht de maatvoering onverhoopt niet (volledig) overeenkomstig de normering zijn vastgesteld, wordt dit door koper aanvaard. Koper is voldoende in de gelegenheid gesteld de maatvoering zelf te (laten) controleren. Verschillen in de opgegeven maat en grootte geven geen der partijen enig recht, zo ook niet op aanpassing van de koopsom. Verkoper en diens makelaar aanvaarden geen enkele aansprakelijkheid in deze.

--------------------------------------------------------------

*English text*

Beautiful and very bright 2-bedroom apartment of approx. 52 m², featuring a spacious balcony and a storage room in the attic, located in the popular Erasmus Park neighborhood in Amsterdam-West!

Surroundings:
The apartment is situated in the Erasmus Park neighborhood, where the area offers a wide range of amenities, with various supermarkets and shops within walking distance. The neighborhood also features cozy cafés and restaurants such as Parkcafé Terrasmus, Fort Negen, and MasMais. For relaxation and recreation, Erasmus Park and Westerpark are just around the corner, offering playgrounds, a petting zoo, and cultural activities. A lively and complete residential environment!

Accessibility:
The apartment is very well connected, both by public transport and by car. Tram and bus stops are within walking distance, and metro station De Vlugtlaan as well as Sloterdijk train station can be reached within minutes. By car, the A10 ring road is easily accessible, and there is ample parking available in the area.

Layout:
The entrance to the apartment on the first floor is accessed via the shared staircase.

First floor:
The hallway provides access to all rooms in the apartment. Thanks to its corner position, the apartment benefits from a very bright and spacious living room with an adjoining open dining area. French doors from the living room open onto the balcony. The apartment also features a generous bedroom and a separate kitchen. The hallway also leads to the bathroom, which is equipped with a toilet and shower.

Additionally, there is a spacious storage room (approx. 11 m²) in the attic, equipped with electricity and heating.

Key features:
- Subdivided into apartment rights in 2025;
- Storage room in the attic;
- Homeowners’ association (VvE) is being established and will be professionally managed by Quadyck Real Estate BV;
- The VvE consists of 4 apartment rights;
- Monthly service charges: €162.71;
- Annual ground lease (erfpacht) payment: €1,028.22;
- Ground lease period runs until June 15, 2064;
- Annual indexation of the ground lease;
- The purchase agreement will follow the Ring Amsterdam model, including additional clauses such as non-occupancy, - asbestos, age clause, and “as is, where is”;
- Quick transfer possible.

Explanatory clause BBMI/NEN-2580:
The usable floor area has been calculated in accordance with the industry standard BBMI/NEN 2580. As a result, the stated surface area may differ from comparable properties and/or older references, mainly due to this (new) measurement method. The buyer declares to have been sufficiently informed about this standard. The seller and their agent have made every effort to calculate the correct surface area and volume based on their own measurements, supported as much as possible by floor plans with dimensions. Should the measurements not fully comply with the standard, the buyer accepts this. The buyer has been given sufficient opportunity to independently verify the measurements. Differences in stated size or area do not grant either party any rights, including adjustment of the purchase price. The seller and their agent accept no liability in this regard.

Foto's

Documenten

Selecteer de documenten om ze te downloaden

€ 375.000,- Kosten Koper

Gratis waardebepaling

Ontvang gratis en vrijblijvend een waardebaling van jouw woning.